Location : Seoul, Korea
Type : Retail
Complete : 2007
Status : Concept Design
Project Description :
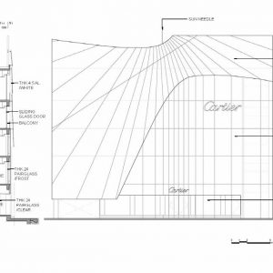
The facade is a recording of the sun’s movement at 3 moments: summer solstice, winter solstice and the equinox. The sun’s passage across the façade is expressed in the profiles of the radiating white fins. Floating veil-like over an operable glass facade, the fins act as a shading scrim for the building occupants.
The exposed glass facade is composed of translucent panels that provide visual cover for the office function while glowing lantern-like in the night. The vertically expressed mullions continuing onto the ground plane become 30 minute markers based on the travel of Light during the summer solstice day.
























